Szczegóły
-
Numer Oferty AS-4
-
Cena Wycena przez telefon
-
Typ nieruchomości Apartament
-
Status nieruchomości Wynajęte
-
Rodzaj Oferty Na Wynajem
-
Pomieszczenia 1
-
Pokoje 1
-
Łazienki 1
-
Rok budowy 2015
-
Powierzchnia 40 m2
-
Co wchodzi w skład ceny? Czynsz, media (zimna i ciepła woda, energia elektr., ogrzewanie w sezonie zimowym), wifi, parking na warunkach określonych szczegółowo w umowie najmu i regulaminie. Utrzymanie czystości na klatce schodowej oraz pielęgnacja trawnika i dbałość o rośliny w ogrodzie należy do właściciela nieruchomości.
-
Opłata za media Wliczona w czynsz.
-
Informacja Skrótowa Całkowicie umeblowana i wyposażona kawalerka na 1 piętrze. Media, wifi i parking w cenie.
-
Piętro Pierwsze Piętro (Z 2 Pięter)
-
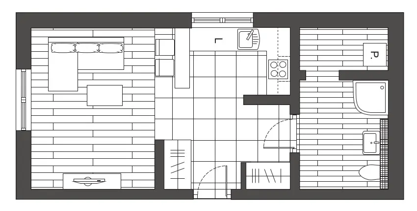
Pomieszczenia Pokój z aneksem kuchennym i łazienka.
-
Wyposażenie Pokój z aneksem kuchennym i łazienka.
-
Wyposażenie Dodatkowe Internet Wi-Fi, domofon, dzwonek drzwiowy, miejsce parkingowe, wjazd na ogrodzoną posesję przez bramę sterowaną pilotem, pralka.
-
Akceptacja Zwierząt Nie
-
Ekspozycja Płn.-Zach.
-
Max. sugerowana liczba osób 2
-
Minimalny okres najmu 12 miesięcy
-
Rodzaj umowy Najem instytucjonalny
-
Kaucja zwrotna Dwukrotna wartość czynszu
-
Rodzaj ogrzewania Gaz
-
Certyfikat Energetyczny Budynek posiada stosowne Świadectwo charakterystyki energetycznej budynku.
Zdjęcia 360°
Wideo
Przegląd
-
Numer Oferty AS-4
-
Typ Apartament
-
Pokoje 1
-
Łazienki 1
-
Powierzchnia 40 m2
-
Rok budowy 2015
Cechy
Adres
Otwórz w Mapach Google-
Adres Srebrna 8, Pszczyna, Apartamenty Srebrna
-
Kraj Polska
-
Województwo Śląskie
-
Miasto Pszczyna
-
Budynek Apartamenty Srebrna
-
Kod pocztowy 43-200
Opis
Całkowicie umeblowana i wyposażona kawalerka na 1 piętrze. Media, wifi i parking w cenie.
Mieszkanie całkowicie umeblowane i wyposażone. W cenie media, wifi i parking.
Komfortowa i całkowicie urządzona i wyposażona kawalerka na wynajem o powierzchni 40 m2 w Pszczynie, na osiedlu Kolonia Jasna, w pobliżu dyskontu spożywczego, szkół, przedszkola, piekarni, apteki, bankomatu, przystanku autobusowego, kościoła rzymskokatolickiego.
Na wyposażenie apartamentu składają się:
Pokój z aneksem kuchennym:
wnękowa szafa ubraniowa (2 szt.), sofa z funkcją spania dla 2 osób, stolik okolicznościowy, regał RTV, stół, krzesło (2 szt.).
Aneks kuchenny:
meble kuchenne, płyta indukcyjna, lodówka z zamrażalnikiem, piekarnik kompaktowy z funkcją mikrofali, pochłaniacz, czajnik elektryczny, zlew naczynia, garnki, sztućce.
Łazienka:
kabina prysznicowa, umywalka, lustro, toaleta, szafka łazienkowa, pralka, schowek.
Budynek
Prezentowany apartament jest jednym z Apartamentów SREBRNA (Mieszkanie nr 4). Apartamenty SREBRNA to w sumie zaledwie 6 lokali mieszkalnych o powierzchni od 35 m2 do 50 m2, zapewniając najemcom spokojne sąsiedztwo. Obiekt, w którym zlokalizowane są mieszkania jest monitorowany, ogrodzony oraz wyposażony w domofon, co gwarantuje gościom poczucie bezpieczeństwa. Do dyspozycji gości pozostaje również ogrodzony parking.
Nasze apartamenty to niezależne lokale z łazienką oraz w pełni wyposażoną kuchnią lub aneksem kuchennym. Apartamenty urządzone są w taki sposób, aby zapewnić gościom przyjemny pobyt w komfortowych warunkach, stanowiąc tym samym doskonałą alternatywę dla hoteli i pensjonatów. Mieszkania posiadają bezpłatny internet, a te zlokalizowane na II piętrze – klimatyzację (z funkcją ogrzewania w sezonie wiosennym i jesiennym). Niektóre z apartamentów mają balkon lub taras, które dodatkowo w lokalach na parterze wyposażone są w wyjście na niewielki ogród.
Apartamenty wynajmujemy naszym gościom długoterminowo, na min. 12 miesięcy. Parkowanie na terenie posesji jest w cenie najmu.
Nazwa Nieruchomości
Apartamenty SREBRNA, Pszczyna, ul. Srebrna 8


Lokalizacja
Atutem Apartamentów SREBRNA jest też ich dogodna lokalizacja na spokojnym osiedlu mieszkaniowym Pszczyny. W pobliżu znajdują się dyskonty spożywcze, bankomaty, pizzerie, kościół rzymskokatolicki, szkoły, przedszkole, żłobek, boiska sportowe, korty tenisowe i Pszczyńskie Centrum Kultury oraz przystanek autobusowy. Niedaleko znajduje się również Jezioro Goczałkowickie, ścieżki rowerowe. Lokalizacja apartamentów jest też korzystna z uwagi na szybki dostęp do DK1 oraz bliskość licznych atrakcji turystycznych Pszczyny, a zwłaszcza Muzeum Zamkowego z przylegającym do niego zabytkowym parkiem pszczyńskim i starówką, jak również Zagrody Żubrów, Skansenu- Zagrody Wsi Pszczyńskiej, Muzeum Prasy.
Ważniejsze Odległości
| Odległość | Czas Spaceru | |
|---|---|---|
| Dyskont spożywczy LIDL | 0.5 km | 6 min |
| Restauracja | 0.22 km | 3 min |
| Piekarnia z cukiernią | 0.75 km | 9 min |
| Apteka | 0.75 km | 9 min |
| Przychodnia lekarska | 0.75 km | 9 min |
| Przedszkole | 0.27 km | 3 min |
| Szkoła podstawowa | 0.55 km | 7 min |
| Liceum | 0.75 km | 9 min |
| Żłobek | 0.75 km | 9 min |
| Bankomat | 0.8 km | 10 min |
| Kościół rzymskokatolicki | 0.85 km | 12 min |
| Przystanek autobusowy | 0.2 km | 3 min |
| Dworzec PKP | 2.1 km | 25 min |
| Centrum przesiadkowe | 2.1 km | 25 min |
| Park Pszczyński | 2.2 km | 27 min |
| Rynek w Pszczynie i starówka | 2 km | 25 min |
| Muzeum Zamkowe – Zamek | 2 km | 25 min |
| Muzeum Prasy Śląskiej | 2.2 km | 27 min |
| Skansen – Zagroda Wsi Pszczyńskiej | 2.5 km | 30 min |
| Pokazowa Zagroda Żubrów | 2 km | 25 min |
| Zapora w Goczałkowicach | 3.5 km | |
| Ośrodek Sportów Wodnych w Łące | 4.5 km |
Ceny ujęte w niniejszej ofercie nie stanowią oferty handlowej w rozumieniu przepisów art. 66 i nast. Kodeksu Cywilnego, ale są jedynie zaproszeniem do zawarcia umowy najmu. W związku z powyższym ww. informacje, w tym ceny mogą ulec zmianie aż do momentu zawarcia umowy z Klientem.



































