Szczegóły
-
Numer Oferty B4M2
-
Cena Wycena przez telefon
-
Typ nieruchomości Apartament
-
Status nieruchomości Wynajęte
-
Rodzaj Oferty Na Wynajem
-
Pomieszczenia 1
-
Pokoje 1
-
Łazienki 1
-
Rok budowy 2017
-
Powierzchnia 33.16 m2
-
Co wchodzi w skład ceny? Czynsz, media (zimna i ciepła woda, energia elektr., gaz), na warunkach określonych szczegółowo w umowie najmu i regulaminie, parking oraz komórka lokatorska. Utrzymanie czystości na klatce schodowej oraz pielęgnacja trawnika i dbałość o rośliny w ogrodzie należy do właściciela nieruchomości.
-
Opłata za media Wliczona w czynsz.
-
Informacja Skrótowa Mieszkanie na wynajem Pszczyna. Umeblowana kawalerka z balkonem na 1 piętrze. Rolety zewnętrzne. Media, komórka lokatorska i parking w cenie.
-
Piętro Pierwsze Piętro (Z 3 Pięter)
-
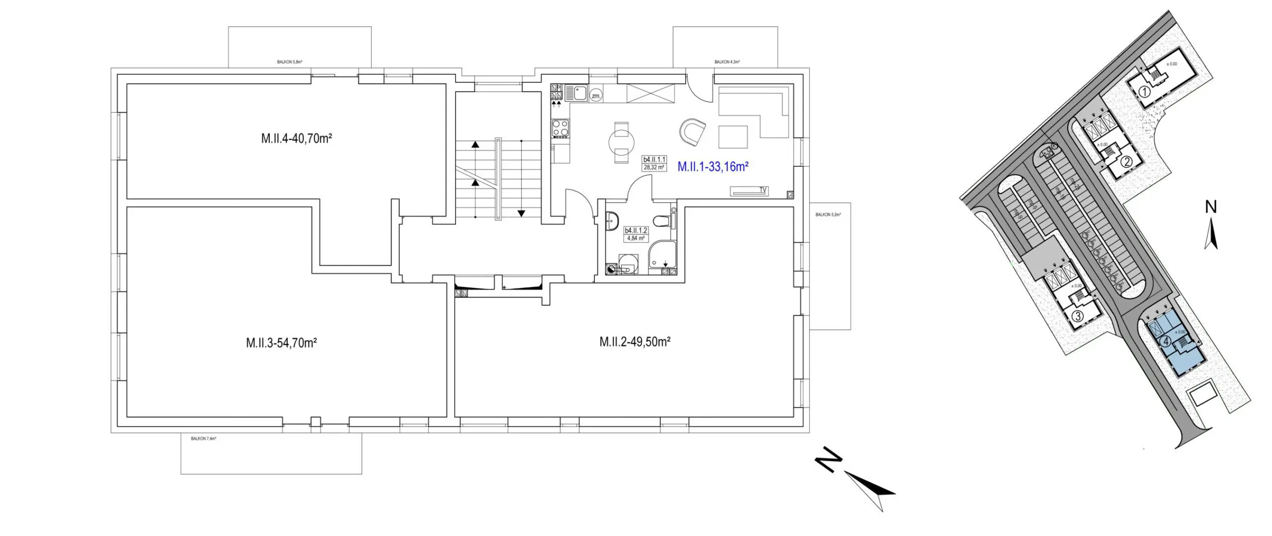
Pomieszczenia pokój z aneksem kuchennym, łazienka oraz dodatkowo balkon.
-
Wyposażenie Mieszkanie umeblowane
-
Wyposażenie Dodatkowe Internet Wi-Fi (za dodatkową opłatą), domofon, dzwonek drzwiowy, sterowane elektrycznie rolety zewnętrzne, miejsce parkingowe, komórka lokatorska, wjazd na ogrodzoną posesję przez bramę sterowaną pilotem.
-
Akceptacja Zwierząt Tak
-
Ekspozycja Wsch.
-
Max. sugerowana liczba osób 2
-
Minimalny okres najmu 12 miesięcy
-
Rodzaj umowy Najem instytucjonalny
-
Kaucja zwrotna Dwukrotna wartość czynszu
-
Rodzaj ogrzewania Gaz
-
Certyfikat Energetyczny Budynek posiada stosowne Świadectwo charakterystyki energetycznej budynku.
-
Rodzaj najmu Wynajem długoterminowy
Zdjęcia 360°
Wideo
Przegląd
-
Numer Oferty B4M2
-
Typ Apartament
-
Pokoje 1
-
Łazienki 1
-
Powierzchnia 33.16 m2
-
Rok budowy 2017
Cechy
Adres
Otwórz w Mapach Google-
Adres Pszczyna, Szymanowskiego 32, Osiedle LAUROWE
-
Kraj Polska
-
Województwo Śląskie
-
Miasto Pszczyna
-
Budynek Osiedle Laurowe
-
Kod pocztowy 43-200
Opis
Mieszkanie na wynajem Pszczyna. Umeblowana kawalerka z balkonem na 1 piętrze. Rolety zewnętrzne. Media, komórka lokatorska i parking w cenie.
Funkcjonalna umeblowana kawalerka z balkonem na wynajem. W cenie najmu: media, komórka lokatorska oraz parking. Przytulna i funkcjonalna, umeblowana, usytuowana na pierwszym piętrze 33 metrowa kawalerka jednego z czterech budynków Osiedla Laurowego w Pszczynie (część osiedla mieszkaniowego Kępa). Mieszkanie znajduje się w pobliżu dyskontu spożywczego, szkół, przedszkola, apteki, bankomatu, przystanku autobusowego, kościoła rzymskokatolickiego oraz zabytkowego Parku Pszczyńskiego i Pszczyńskiej starówki.
Na mieszkanie składają się następujące pomieszczenia:
Pokój z aneksem kuchennym – 28,32 m2
Łazienka – 4,84 m2
Balkon – 4,30 m2
Mieszkanie składa się z dużego salonu z aneksem kuchennym i jest gotowe do natychmiastowego zamieszkania. Okna z pokoju skierowane na wschód. Z salonu wyjście na balkon. Okna i drzwi balkonowe wyposażone w rolety zewnętrzne. Doskonały stosunek ceny do funkcjonalności.
W mieszkaniu znajdują się następujące meble: rozkładana sofa 2-osobowa, stolik okolicznościowy, szafka rtv, szafa, komoda, stół i 4 krzesła.
Aneks kuchenny wyposażony jest w meble oraz niezbędny sprzęt kuchenny (płyta indukcyjna z piekarnikiem, zlew, chłodziarko-zamrażarka, pochłaniacz). Łazienka jest wykafelkowana i całkowicie urządzona (kabina prysznicowa, toaleta, umywalka, lustro). Na podłodze pokoju znajdują się panele, natomiast w łazience i aneksie kuchennym płytki. Ściany są pomalowane. Mieszkanie wyposażone jest w drzwi wewnętrzne i zewnętrzne, karnisze, stolarkę okienną (PCV) wraz z elektrycznie sterowanymi zewnętrznymi roletami. W mieszkaniu zainstalowane są lampy, osprzęt elektrotechniczny i domofon, a także dwufunkcyjny kocioł centralnego ogrzewania firmy VIESSMANN oraz grzejniki.
Zapraszamy Cię na prezentację mieszkania bez wychodzenia z domu! Zobacz nasze spacery wideo:
Przynależną częścią mieszkania jest znajdująca się na parterze komórka lokatorska oraz zewnętrzne miejsce parkingowe. Ponadto, za dodatkową opłatą, w miarę dostępności istnieje możliwość wynajęcia miejsca garażowego znajdującego się na parterze budynku.
Miejsce w garażu 1.
Miejsce w garażu 2.
Miejsce w garażu 3.
Budynek
Mieszkanie zlokalizowane jest w budynku nr 4 (Mieszkanie nr 2) Osiedla LAUROWEGO w Pszczynie przy ul. K. Szymanowskiego 32 (obok Pasażu Książęcego), na terenie osiedla mieszkaniowego Kępa, w sąsiedztwie zabytkowego Parku Pszczyńskiego, przylegającego do Pszczyńskiej starówki. Zabudowa Osiedla Laurowego obejmuje 4 budynki mieszkalne wielorodzinne o 4 kondygnacjach naziemnych, w których jest łącznie 46 mieszkań (o powierzchni użytkowej od 33 m2 do 72 m2).
Na parterze budynków znajdują się komórki lokatorskie przynależne do każdego mieszkania oraz garaże dla samochodów osobowych. W każdym budynku zainstalowany jest domofon, co gwarantuje mieszkańcom poczucie bezpieczeństwa. Osiedle jest ogrodzone, posiada monitorowany wjazd, sterowany pilotem oraz duży bezpłatny parking dla mieszkańców.
Nazwa Nieruchomości
Osiedle Laurowe, Pszczyna, ul. Karola Szymanowskiego 32


Lokalizacja
Atutem mieszkania jest też jego dogodna lokalizacja na cichym i spokojnym osiedlu mieszkaniowym Pszczyny, obok Pasażu Książęcego (dyskont spożywczy, apteka, bankomat, fryzjer, bar, punkt pocztowy) i 10 min. drogi pieszo od zabytkowego Parku Pszczyńskiego i Pszczyńskiej starówki z licznymi atrakcjami turystycznymi (Muzeum Zamkowe, Zagroda Żubrów, Skansen – Zagroda Wsi Pszczyńskiej, Muzeum Prasy) oraz licznymi rozrywkami i restauracjami. W odległości 50 m od mieszkania znajduje się również boisko i bieżnia oraz kryty basen, szkoła ponadpodstawowa, przystanek autobusowy, zaś zaledwie w odległości ok. 1km drogi spokojną ulicą znajduje się przedszkole i szkoła podstawowa, a 500 m – Kościół rzymskokatolicki.
Ważniejsze Odległości
| Odległość | Czas Spaceru | |
|---|---|---|
| Sklep Biedronka | 0.05 km | 1 min |
| Sklep Żabka | 0.4 km | 7 min |
| Apteka | 0.05 km | 1 min |
| Punkt pocztowy | 0.05 km | 1 min |
| Bankomat | 0.05 km | 1 min |
| Kościół rzymskokatolicki | 0.5 km | 8 min |
| Szkoła podstawowa | 1 km | 13 min |
| Przedszkole | 1 km | 13 min |
| Szkoła ponadpodstawowa | 0.05 km | 1 min |
| Przystanek autobusowy | 0.05 km | 1 min |
| Dworzec PKP | 2.5 km | 30 min |
| Centrum przesiadkowe | 2.5 km | 30 min |
| Park Pszczyński | 0.4 km | 10 min |
| Rynek w Pszczynie i starówka | 1.3 km | 20 min |
| Pokazowa Zagroda Żubrów | 0.5 km | 8 min |
| Muzeum Zamkowe – Zamek | 1.3 km | 20 min |
| Muzeum Prasy Śląskiej | 1.8 km | 22 min |
| Skansen – Zagroda Wsi Pszczyńskiej | 2 km | 25 min |
| Zapora w Goczałkowicach | 5 km | |
| Ośrodek Sportów Wodnych w Łące | 5.5 km |
Ceny ujęte w niniejszej ofercie nie stanowią oferty handlowej w rozumieniu przepisów art. 66 i nast. Kodeksu Cywilnego, ale są jedynie zaproszeniem do zawarcia umowy najmu. W związku z powyższym ww. informacje, w tym ceny mogą ulec zmianie aż do momentu zawarcia umowy z Klientem.
Skontaktuj się z nami, aby uzyskać więcej informacji na temat oferty lub umówić się na prezentację mieszkania.
Obserwuj nasze media społecznościowe, aby nie przeoczyć naszych najlepszych ofert:
Facebook: Xconsulter Nieruchomości
Instagram: xconsulter_nieruchomosci
YouTube: @XCONSULTER
Jeśli szukasz mieszkania na wynajem, lecz wszystkie oferty, które Cię interesują są obecnie wynajęte, koniecznie wypełnij formularz ZOSTAW KONTAKT . Podaj nam dane do siebie i opis Twojego wymarzonego mieszkania. Jak tylko zwolni się lokal spełniający Twoje oczekiwania, skontaktujemy się z Tobą.

















